Wohnhaus Dassendorf 1

Umbau und Modernisierung eines Wohnhauses

Bundesstraße - 21521 Dassendorf
BGF: 210 m2
Planungszeitraum: 2011
Leistungen: Bauaufnahme und Umbauplanung (Leistungsphasen 1-4)

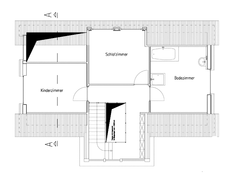
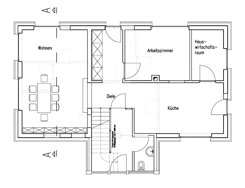
Das nicht unterkellerte Wohnhaus wurde zu Beginn des 20. Jahrhunderts errichtet und in den 1960er Jahren südseitig erweitert. Die Sohle und die Erdgeschosswände sind als massive Konstruktionen ausgeführt, während die Decke über dem Erdgeschoss und das Satteldach in Holzbauweise konstruiert wurden.

Für die Modernisierung und den Umbau sind eine umfangreiche Entkernung des Innenraums, die Neupositionierung der Räumlichkeiten, die Erneuerung bzw. die Instandsetzung von Bauteilen sowie die Herstellung eines neuen Innenausbaus vorgesehen.

Als Erweiterungsmaßnahmen sind ein Dachausbau in Form einer Gaube an der Westseite und ein Giebelanbau als neuer Eingang an der Ostseite vorgesehen.